あなたらしい、
新しい家づくりのカタチを。
岩切建設が得意としている、 高気密・高断熱・高耐震でシロアリに強い「高性能住宅」と、 かっこいい、誰もが憧れる「デザイン住宅」の両方を兼ね備えた わたしたち住宅のプロが「心から住みたい」と思う家づくりです。
人生に一度きりの体験。 だからこそ、最高の家づくりを。
WTW HOUSE PROJECT ダブルティー ハウスプロジェクト
この家の中で流れるのは、
“波を待つひととき”のような特別な時間。
そんな贅沢な時間と感覚を、
日々のライフスタイルの中で
体感できます。
Waiting for the wave……波待ちの時間。
それはサーファーたちにとって至福のひととき。
次はどんな波と出会えるだろうか。
どんなライドが楽しめるだろうか。
自然と自分が一体になっていくような開放感。
そして湧き上がる静かな高揚感……
WTW HOUSE PROJECTが提案するデザイン住宅は、
そんな贅沢な時間と感覚を、日々のライフスタイルの中で体感できる。
都会と自然、日常と非日常、インテリア選びと家づくり……
さまざまなファクターが混ざり合い、そこに巻き起こる波を、あなたならどう楽しむだろうか。
資料請求のお問い合わせはこちら
もっと詳しく知りたい方は、
こちらからお気軽にお問い合わせください。
AM6 HOUSE エーエムシックスハウス
早起きしたくなる家
ここは、早起きしたくなる家。朝、早く起きる。
たったそれだけで、日常は心地よく、楽しく、そして大きく変化する。
『AM6』は、あなたの朝を、心とからだに優しい時間へと変えてくれるはずです。
資料請求のお問い合わせはこちら
もっと詳しく知りたい方は、
こちらからお気軽にお問い合わせください。
RESUMU HOUSE RE住むハウス
あなたが選ぶ、あなたがつくる。
三角屋根の自由な家。
個性豊かなスタイルを選んでつくるリノベプランとして人気の
RE住むRENOVATION『STANDARD LINE』を新築戸建て用にアップデート!
3つの内装スタイル、2つの間取りプラン、15パターンの外壁カラーリングを選んで、組み合わせて、
思いっきり楽しめる自由でシンプルなデザインハウス。
あなたならどんな家をつくりますか?
『RE住むHOUSE』のつくり方はとてもシンプル。
3つの内装スタイルと、2つの間取りプラン、15パターンの外壁カラーリングを選んで組み合わせれば、あなただけの『RE住むHOUSE』がデザインできます。
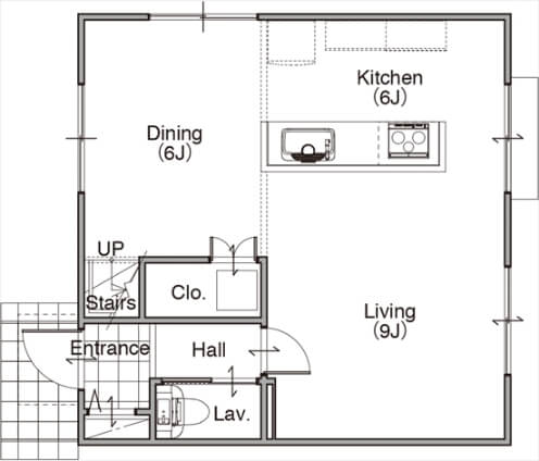
レイアウト
- 床面積 ⁄
- 1F床面積:40.57㎡
2F床面積:40.57㎡
- 延床面積 ⁄
- 81.14㎡
- 床面積 ⁄
- 1F床面積:39.74㎡
2F床面積:39.74㎡
- 延床面積 ⁄
- 79.48㎡
ポイント
資料請求のお問い合わせはこちら
もっと詳しく知りたい方は、
こちらからお気軽にお問い合わせください。



























